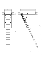
LWS-P 折叠梯

LWS-P是一款由松木制成的折叠梯,配有内外两侧都是米黄色的MDF隔热木板门。
踏板用楔形结构固定增加了梯子的耐用性。为了更加舒服的攀登楼梯,踏板和木板门之间有一定的距离,并且踏板上刻有槽用以防滑。
踏板没有超出梯子表面。
设计
1 3/8 "厚的隔热MDF木板门可以帮助减少能量的散失-隔热系数为R 5.2 木板门的木箱四周全部上有密封条。 |
|
|
| 木板门的外侧(木板门关闭时的可见部分)是平整的,看不到任何固定支点。配套提供的锁和金属转柄能使您轻松关闭木板门。 |
梯子上固定有角度支架,使梯子定位更加准确。 |
|
|
| 独特设计的开启装置不会影响您进出阁楼。可调节的弹簧开启装置可根据个人喜好进行调节。所有木板门的木箱上均装有密封条,可以将热量的散失降至低。 |
踏板用楔形结构固定增加了梯子的耐用性。踏板上刻有槽用以防滑。 |
|
特点:
1⅜”厚的隔热MDF木板门可帮助减少能量的散失-隔热系数为R 5.2
配有红色的金属扶手
木板门的外侧是平整的,看不到任何金属固定支点
锁片隐藏在里面几乎看不到
当阁楼梯木板门打开时,两侧的弹簧也随之拉下,一个通往阁楼的更加宽阔舒服的通道展现眼前(这是目前市场上宽的一种阁楼梯入口)
两侧支架的智能设计,使得梯子在安装后可在1½”范围内进行调节,使其平稳抵达地板,即使更换地板后也可进行调节
木板门可以平稳的开关(不会出现突然的动作)
配有金属开关转柄
梯脚可配有塑料脚垫
高质量的原料和先进的技术
2年100%保修期
上一篇:没有了!
下一篇:LWS-M 阁楼梯
下一篇:LWS-M 阁楼梯
Copyright © 2016 上海美阁环保建材有限公司 版权所有
沪ICP备16048374号-1
沪ICP备16048374号-1






